Company
Properties
Forms
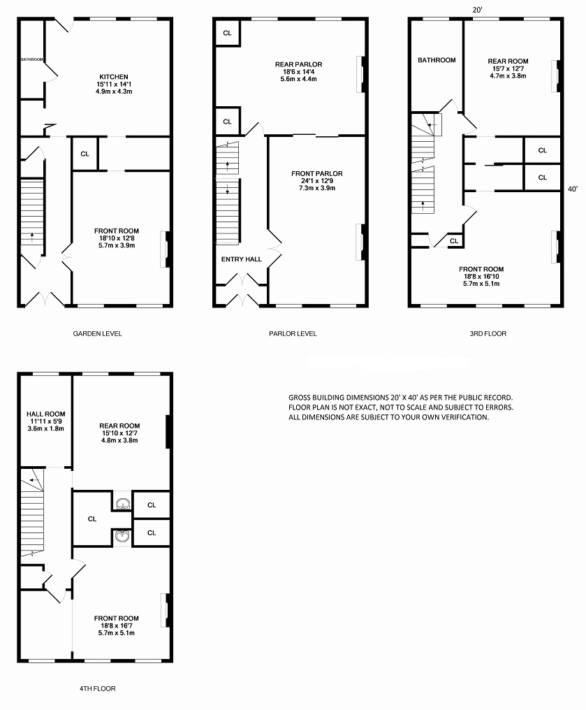
Property #194
Dean St. North Park Slope Townhouse
JUST SOLD! Dean Street, North Park Slope. This historic 4 story townhouse presents an excellent opportunity to renovate. 20′ wide with all original details. Current C-0 is for an SRO (2 family plus 4 rooms). The property is currently vacant. All cash buyers only please. Long time owner’s say sell!
View the floorplan











