#254

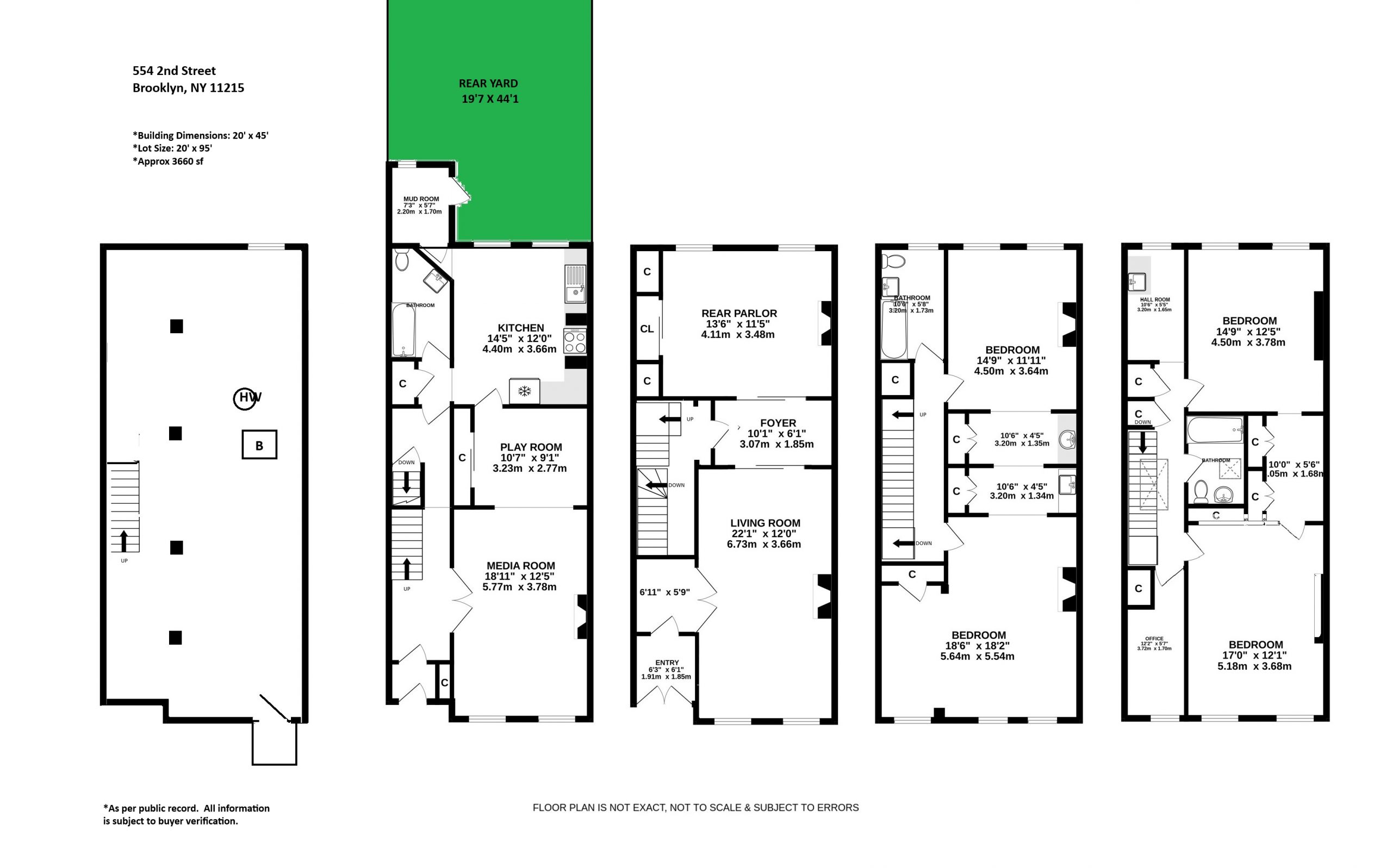
554 2nd Street, Park Slope Brooklyn

Outstanding 4 story, 20’ wide brownstone townhouse on 2nd Street (7/8th Ave) – ready for your renovation.
This beautiful home retains its amazing original details, layout and proportions, offering all of the hallmarks that define brownstone living.

11 rooms, 4-5 bedrooms, excellent backyard and full basement.
Offered for the first time in more than 50 years.
The location is superb – close to everything that makes Park Slope an excellent place to reside,
one block to Prospect Park, close by shops, schools, food options and convenient to public transportation.
This fine home awaits your vision.

For further information/an appointment, please contact us:

Michael Sabin, Associate Broker

Cell: 917 975-7491

Email: msabin612@gmail.com


Elaine Gay, Broker

718 832-2669

Email: elainegayesq@gmail.com

View the floorplan

Asking Price: $3,900,000.